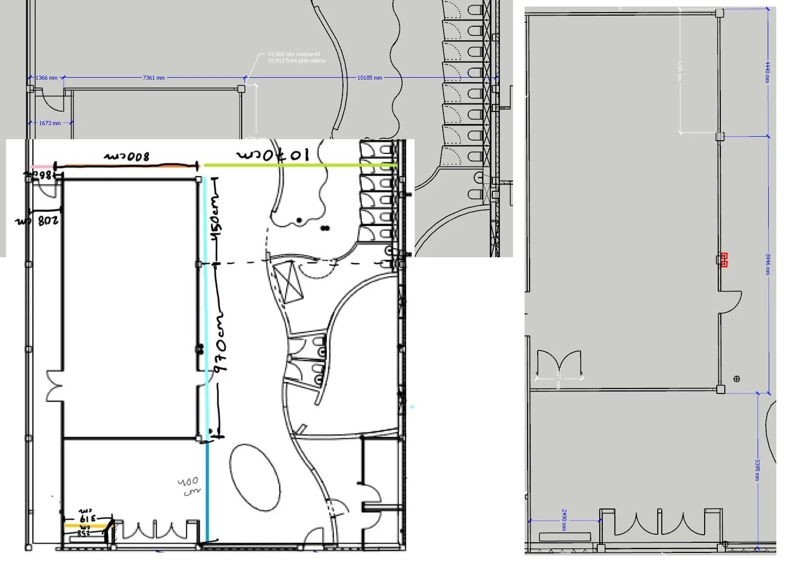
30.0 - New measurements

Hein went to site to check the measurements that i thought were incorrect!

Carla Bento

Our View / vison on how to support you:

“Living in boats, learnings from the water to the space! - MA Interior Architecture & Design Thesis case study (undergoing)

Our Mission:

1/ consultancy support for customers managing own project;

2/ Self-build small projects only!

3/ One-to-one communication via an online chat

https://kolours.space
Previous
Previous

Plan Number #2 = Drafting!

Next
Next

29.0 - Flip left Diagram